

Via Strada Pavese, 64 27040 - Broni (PV)
329 860 9122
info@falegnameriacicuti.it

SCHEDE TECNICHE

Disegni Tecnici Finestre Legno-Alluminio
Sfoglia e approfondisci i dettagli delle nostre soluzioni.
In questa sezione troverai i disegni tecnici completi, con specifiche su profili, giunzioni e sistemi di montaggio.
Uno strumento essenziale per progettisti, installatori e clienti che desiderano approfondire le caratteristiche dei nostri serramenti.
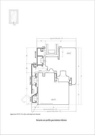
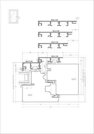
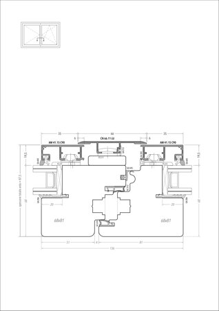
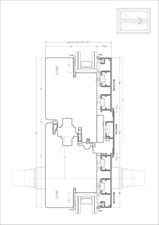
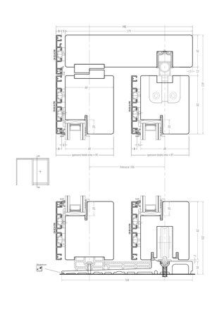
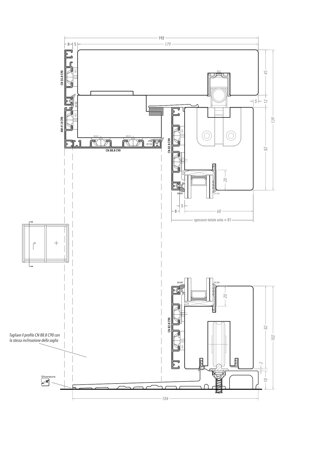
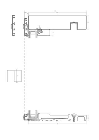
Finestre legno-alluminio
Orizon
Il sistema complanare con una giunzione a 90 gradi.





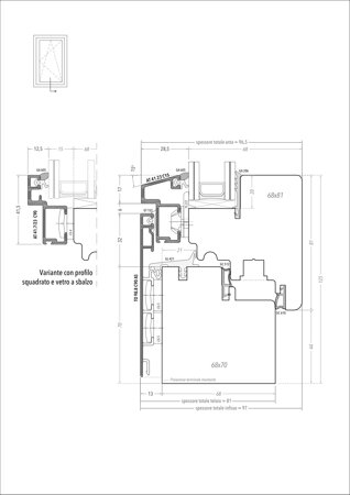
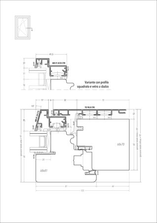
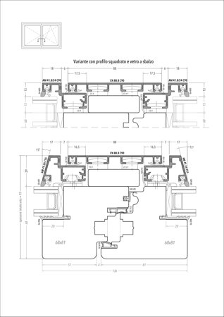
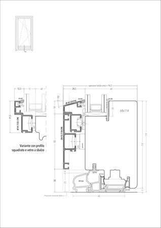
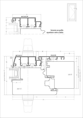
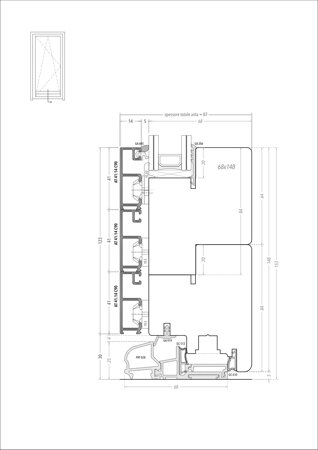
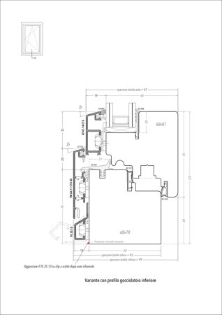
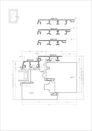
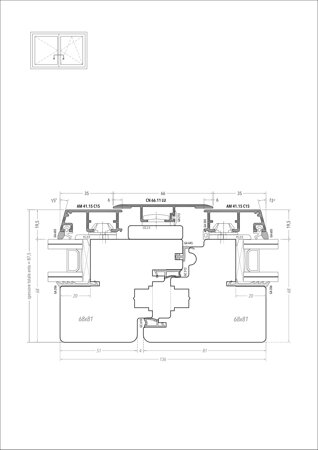
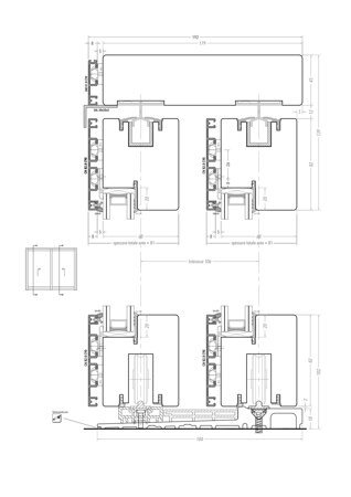
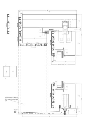
Finestre legno-alluminio
Sistema 21
I profili squadrato a 90°.








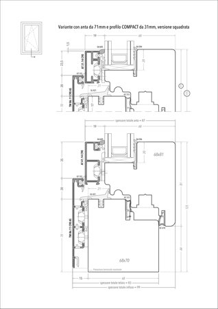
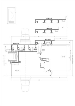
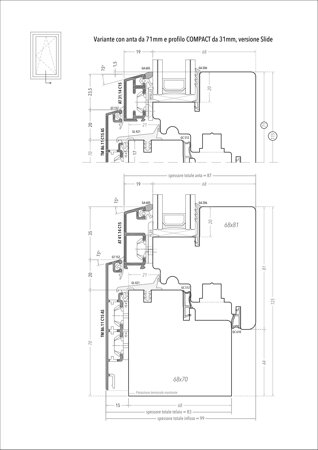
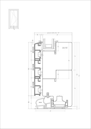
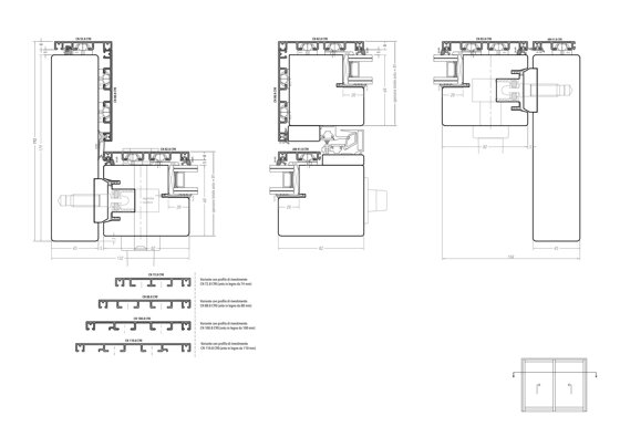
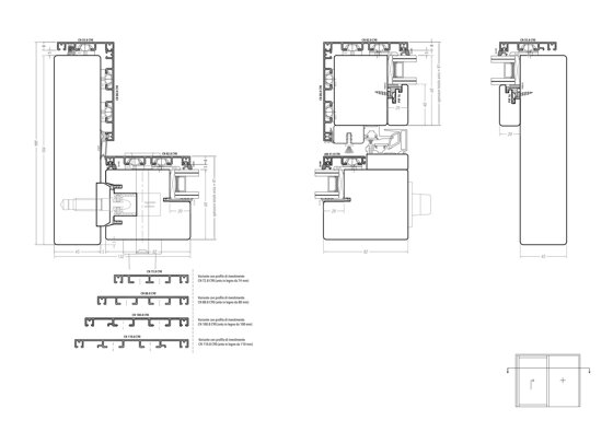
Finestre legno-alluminio
Sistema 21 slide
I profili con inclinazione di 15° e raggio ridotto.





Finestre legno-alluminio
Climatech scorrevole 1 anta



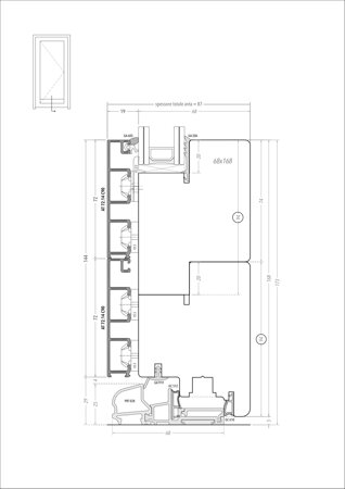
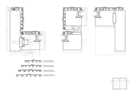
Finestre legno-alluminio
Climatech scorrevole 2 ante


Finestre legno-alluminio
IMAGO


